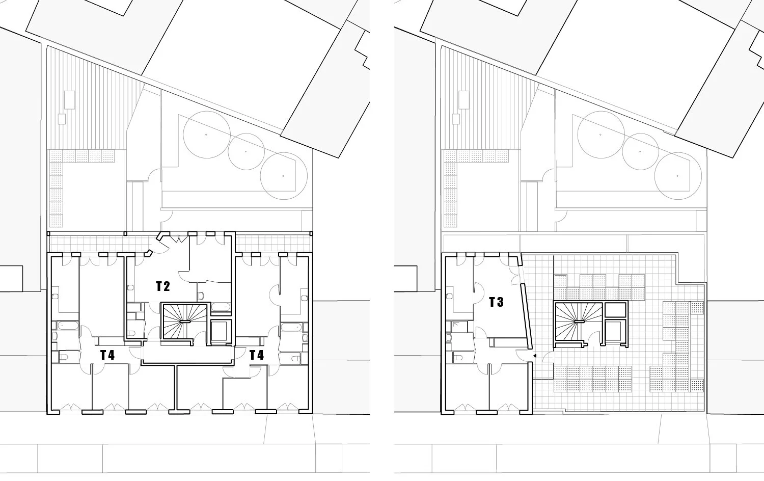
18 LOGEMENTS EN ACCESSION SOCIALE

Programme
maîtrise d’ouvrage
équipe
surface
coût
statut CRÉDIT PHOTO
DISTINCTION

18 LOGEMENTS - SAINT-DENIS
CAPS - BATIPLAINE
BENJAMIN FLEURY (CdP JR.Hamel) + SYNAPSE (Fluide) + I+A (Struct.) + ATEEC (Eco)
1 029 M2 SHAB
1.8 M€
LIVRAISON 2022
© DAVID BOUREAU (Photographies Libre de Droit) TROPHÉE “ OPÉRATION REMARQUABLE” DES COOP HLM

 
VUE AERIENNE_FINALE_V2.jpg
 
TOP